Skip to main content
Scroll Top
Menú
Inicio
Nosotros
Proyectos
Servicios
Administrativos
Gestión Integral de Proyectos
Gráficos
Técnicos
Certificados ISO
Política del Sistema de Gestión
Contacto
Menú
Inicio
Nosotros
Proyectos
Servicios
Administrativos
Gestión Integral de Proyectos
Gráficos
Técnicos
Certificados ISO
Política del Sistema de Gestión
Contacto
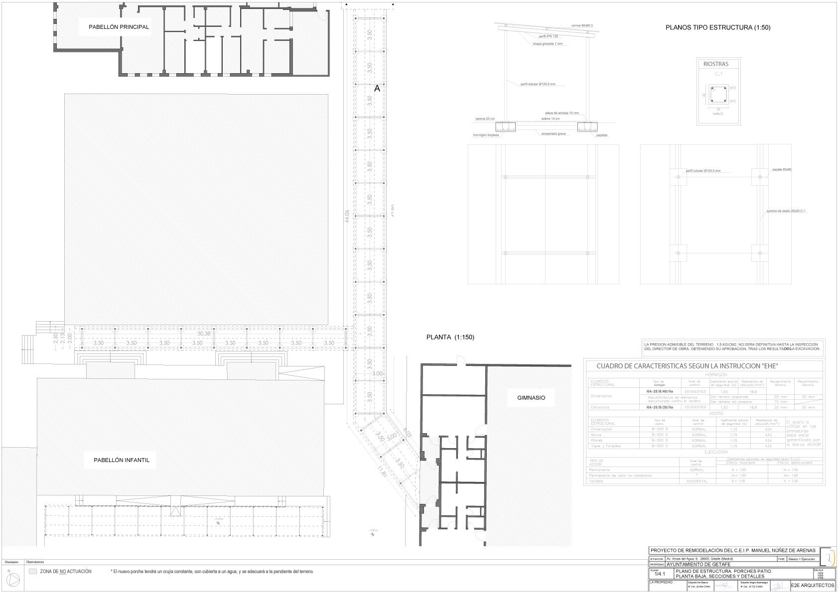
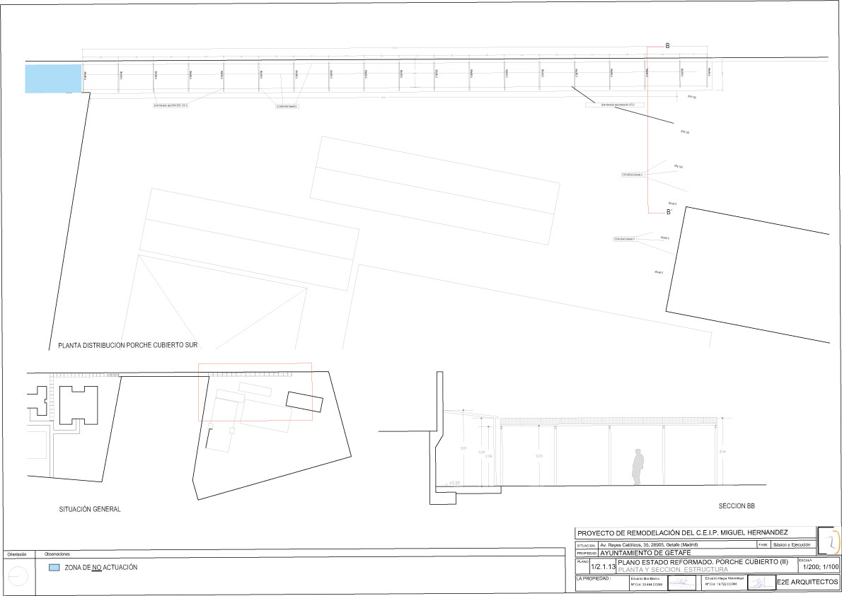
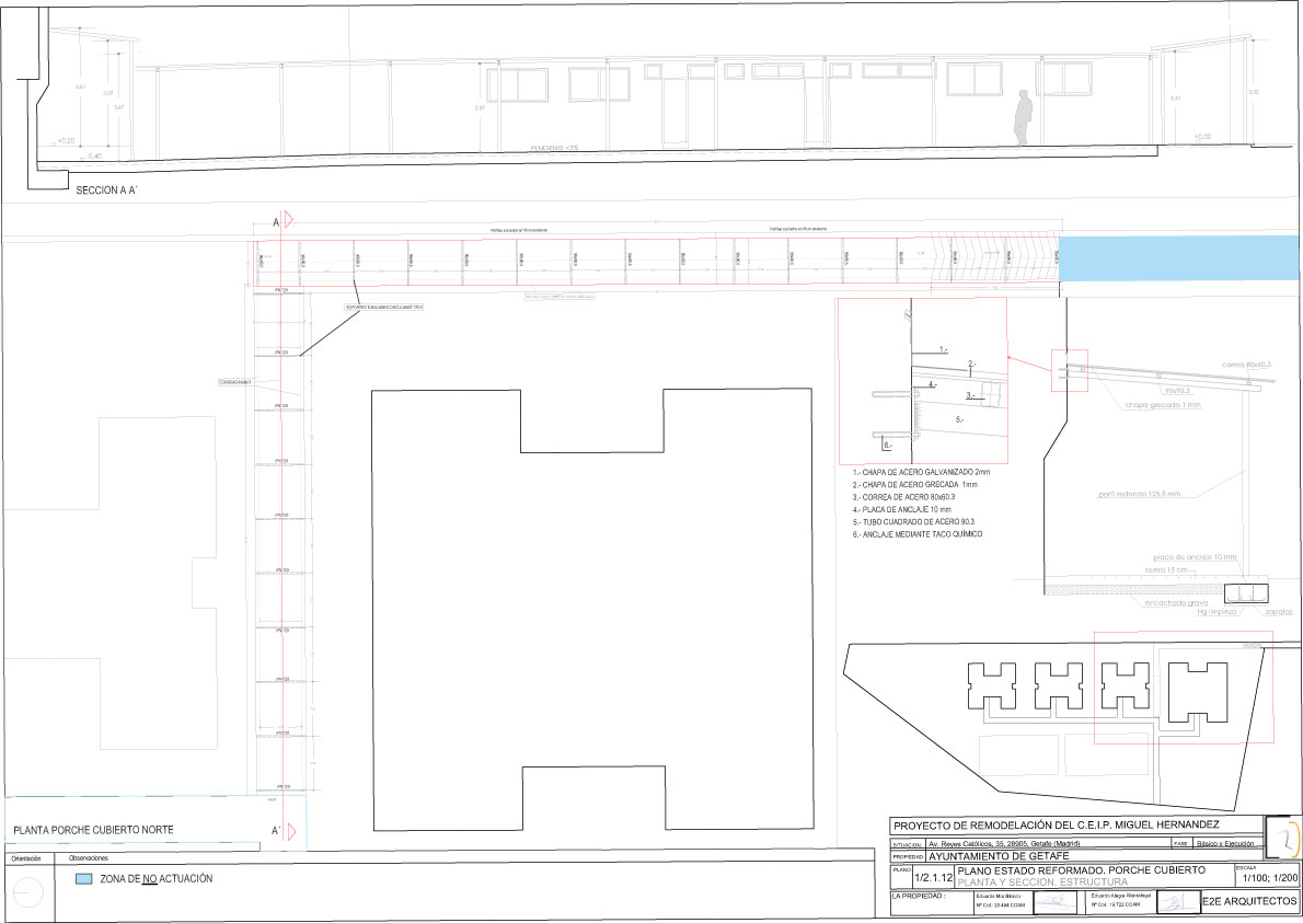
ACTUACIONES EN VARIOS COLEGIOS
Proyecto básico y de ejecución.
Situación
:
Remodelación del C.E.I.P. Miguel Hernández, C.E.I.P. Enrique Tierno Galván, CEIP José Ortiz Echague; CEIP Concepción Arenal y CEIP Manuel Núñez Arenas
Promotor
:
Ayuntamiento de Getafe
Año
:
2021
Navegación de entradas
Proyecto Anterior
Siguiente Proyecto
Ir al contenido
Abrir barra de herramientas
Herramientas de accesibilidad
Herramientas de accesibilidad
Aumentar texto
Aumentar texto
Disminuir texto
Disminuir texto
Escala de grises
Escala de grises
Alto contraste
Alto contraste
Contraste negativo
Contraste negativo
Fondo claro
Fondo claro
Subrayar enlaces
Subrayar enlaces
Fuente legible
Fuente legible
Restablecer
Restablecer